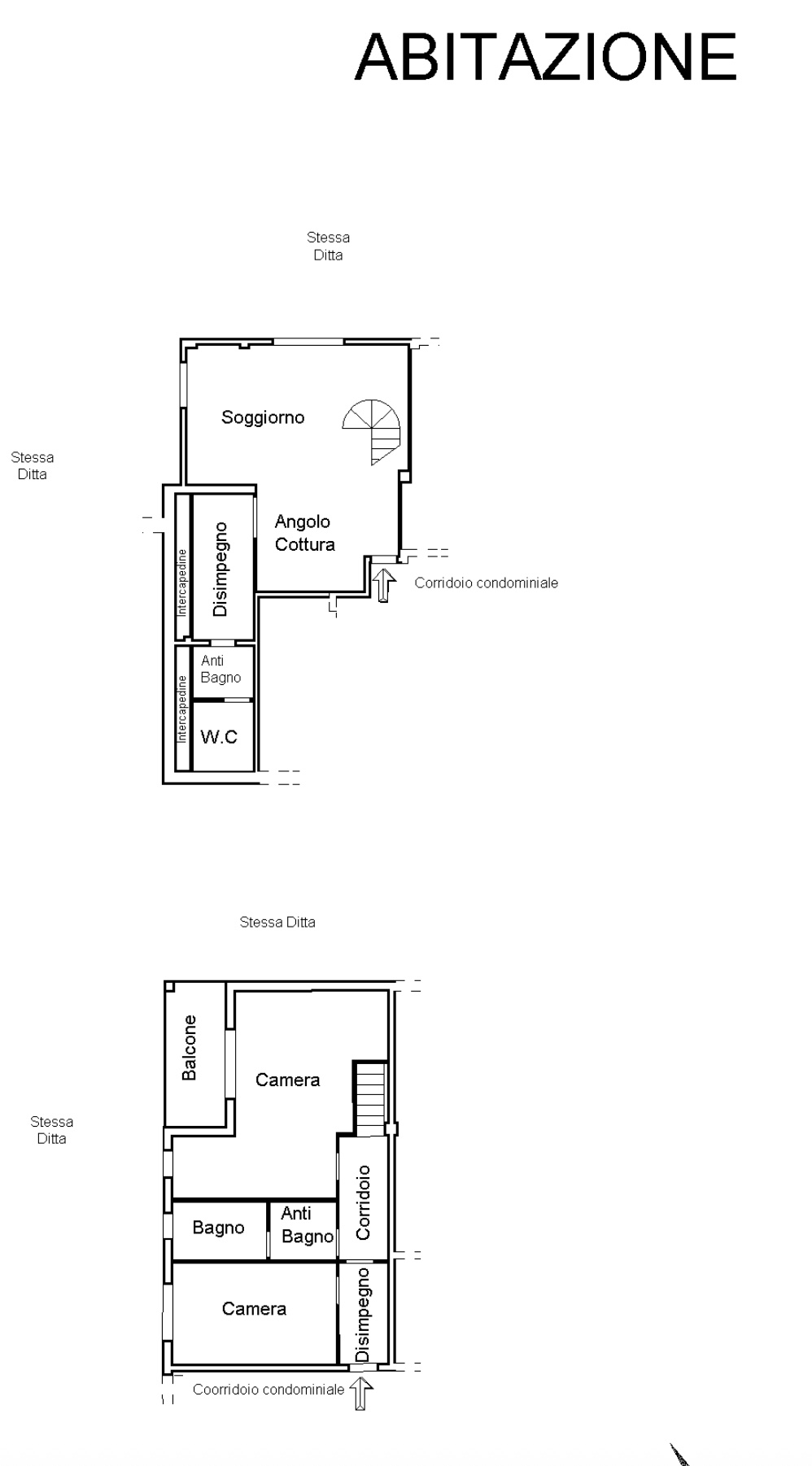
Just 3 km from the city center and the beautiful beaches of Sanremo, in a quiet and elegant setting, we offer for sale a refined apartment arranged over two levels, ideal both as a primary residence and as a holiday home.
The property is in perfect condition and ready to move in. On the ground floor, there is an inviting living room with a fully equipped kitchen, a practical laundry room, and a bathroom. An internal staircase leads to the upper floor, where the sleeping area consists of two spacious bedrooms, a large bathroom, and a balcony.
The highlight of the property is the generous outdoor space, a true added value and distinctive feature of great appeal: a well-maintained garden of approximately 270 sqm, enhanced by the presence of several olive trees. From here, you can enjoy a stunning sea view, offering relaxing moments and picturesque scenery throughout the day.
This area is further complemented by a beautiful terrace, a cozy space perfect for outdoor dining, sunbathing, and enjoying the wonderful sea view.
The property benefits from excellent exposure, making it particularly bright and sunny throughout the day. It is equipped with independent heating, ensuring comfort in every season.
A private parking space within the condominium area completes the property. An ideal solution for those seeking tranquility, sea views, and high living quality just a few minutes from the center of Sanremo.